Rif: EF3950
PERO
MILANO
Proponiamo in vendita - all'interno di un contesto industriale destinato ad aziende di rilevanza internazionale e situato in una posizione altamente strategica per i principali collegamenti logistici:
ASSET DIREZIONALE E PRODUTTIVO - attualmente locato a primaria azienda con una redditività lorda del 8,5% annua.
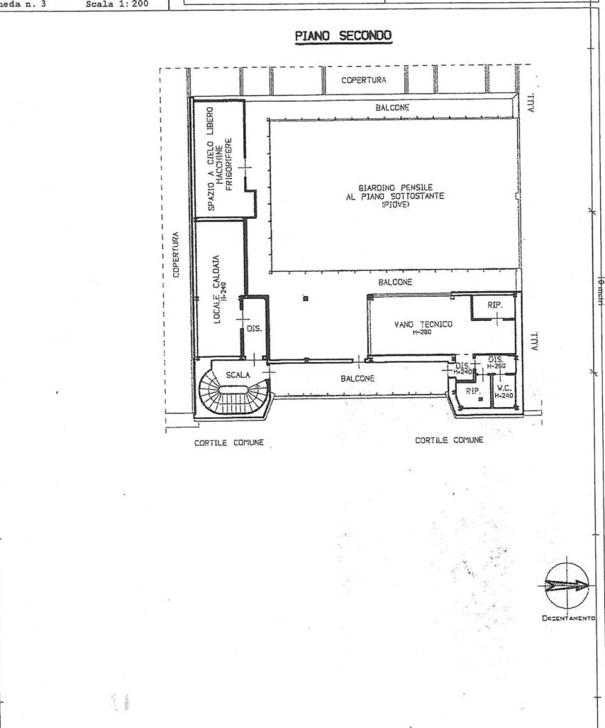
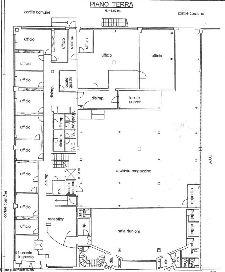
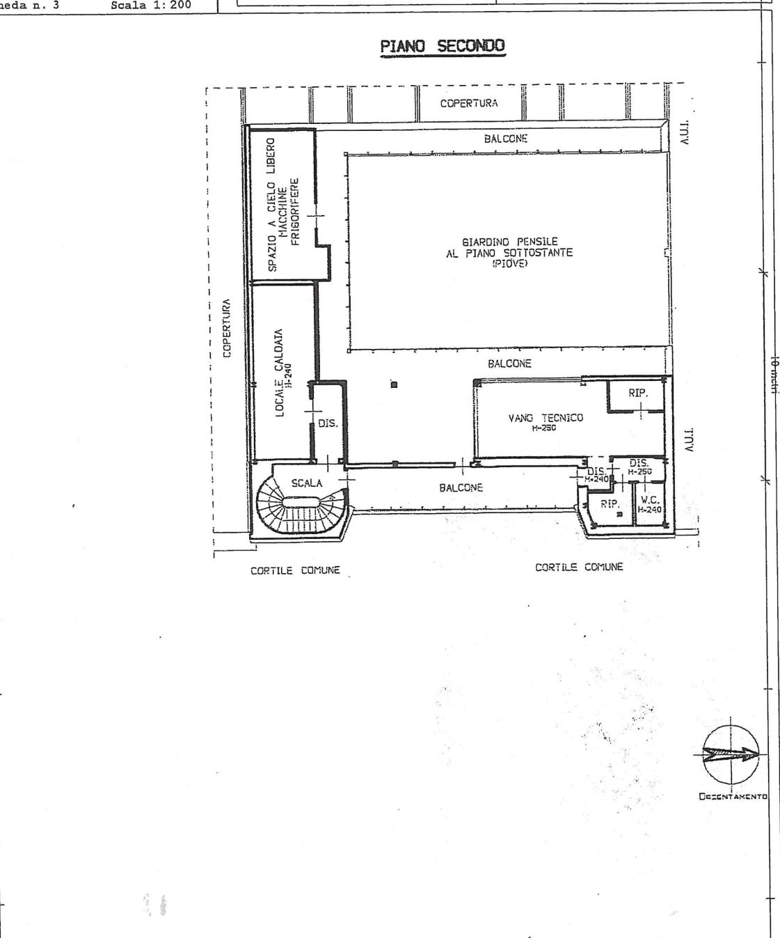
Composto da uffici e magazzini e laboratori di produzione oltre ad una elegante sala meeting.
Attualmente locato ad azienda di rilevanza internazionale, l'immobile ha goduto recentemente di efficientamento degli impianti e interventi di riqualificazione, installando altresì impianti fotovoltaici dotati di pannelli solari di ultima generazione ad alta efficienza.
Sono presenti accessi carrabili e pedonali dedicati ed inoltre, oltre 50 posti auto a disposizione dell'intero contesto industriale.
LA ZONA: fortemente strategica, garantisce Vicinanza e comodità logistica con le principali arterie autostradali come: autostrada A4 - autostrada A50;
La zona è da sempre usata come area logistica/fieristica per questo motivo le strade sono appositamente pensate per il passaggio dei mezzi pesanti.
Superficie complessiva 3.800mq
IL PRESENTE ANNUNCIO NON COSTITUISCE ALCUN ELEMENTO CONTRATTUALE PER EVENTUALI INFORMAZIONI E DETTAGLI NON ESITARE A CONTATTARCI.
ASSET DIREZIONALE E PRODUTTIVO - attualmente locato a primaria azienda con una redditività lorda del 8,5% annua.
Composto da uffici e magazzini e laboratori di produzione oltre ad una elegante sala meeting.
Attualmente locato ad azienda di rilevanza internazionale, l'immobile ha goduto recentemente di efficientamento degli impianti e interventi di riqualificazione, installando altresì impianti fotovoltaici dotati di pannelli solari di ultima generazione ad alta efficienza.
Sono presenti accessi carrabili e pedonali dedicati ed inoltre, oltre 50 posti auto a disposizione dell'intero contesto industriale.
LA ZONA: fortemente strategica, garantisce Vicinanza e comodità logistica con le principali arterie autostradali come: autostrada A4 - autostrada A50;
La zona è da sempre usata come area logistica/fieristica per questo motivo le strade sono appositamente pensate per il passaggio dei mezzi pesanti.
Superficie complessiva 3.800mq
IL PRESENTE ANNUNCIO NON COSTITUISCE ALCUN ELEMENTO CONTRATTUALE PER EVENTUALI INFORMAZIONI E DETTAGLI NON ESITARE A CONTATTARCI.
Consistenze
| Descrizione | Superficie | Sup. comm. |
|---|---|---|
| Principali | ||
| Ufficio - 1° piano | 3.800 Mq | 3.800 Mqc |
| Totale | 3.800 Mqc | |
