Rif: EDOTREZZANO
TREZZANO SUL NAVIGLIO
MILANO
Proponiamo in vendita - nel quartiere residenziale ZINGONE ed all'interno di un contesto condominiale degli anni 2009 ed ottimamente tenuto nelle zone comuni - Grazioso Bilocale al piano terra con oltre 100mq di giardino privato!
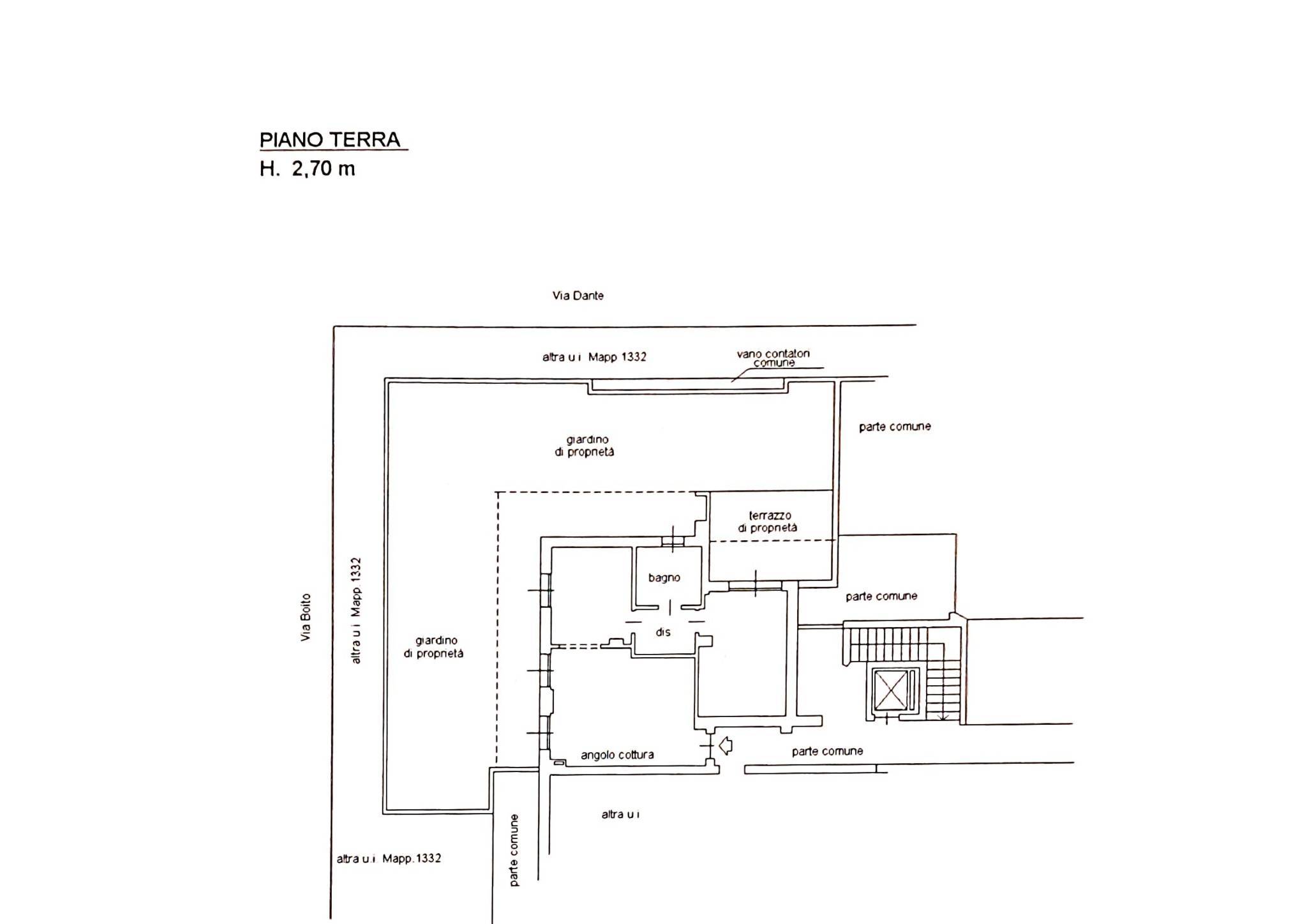
L'immobile, che si presenta in buone condizioni interne, ed è subito abitabile, è così composto: Ingresso tramite porta blindata che conduce alla zona soggiorno living ampia e luminosa grazie alla presenza di due porte finestre che accedono anche al giardino privato.
A seguire cucina abitabile con comoda e funzionale penisola che ospita il piano cottura a 5 fuochi, una cappa di aspirazione sospesa regala eleganza e design all'ambiente.
Bagno finestrato con box doccia e sanitari appoggiati; la camera da letto, ampia e luminosa, è arricchita da una elegante pavimentazione in parquet con posa diagonale, a valorizzare la luminosità in questo ambiente, una grande porta finestra anch'essa con accesso al giardino privato.
Se vuoi vivere in città ma allo stesso tempo godere di uno spazio esterno privato e discreto, questa è la soluzione che fa per te!
Completa la soluzione una cantina di pertinenza.
La zona si presenta ottimamente servita e nelle vicinanze si possono trovare Supermercati, Banche, Farmacie e servizi di prima necessità; inoltre molto comoda alla stazione di Trezzano S/N dalla quale dista solamente 700 metri.
POSSIBILITA' DI ACQUISTARE UN BOX AUTO AD EURO 15.000, 00 (QUINDICIMILA)
BUONI MOTIVI PER ACQUISTARE QUESTO IMMOBILE:
- Condizioni interne buone
- Contesto condominiale recente costruzione
- Giardino Privato
- Costi di gestione contenuti.
L'immobile, che si presenta in buone condizioni interne, ed è subito abitabile, è così composto: Ingresso tramite porta blindata che conduce alla zona soggiorno living ampia e luminosa grazie alla presenza di due porte finestre che accedono anche al giardino privato.
A seguire cucina abitabile con comoda e funzionale penisola che ospita il piano cottura a 5 fuochi, una cappa di aspirazione sospesa regala eleganza e design all'ambiente.
Bagno finestrato con box doccia e sanitari appoggiati; la camera da letto, ampia e luminosa, è arricchita da una elegante pavimentazione in parquet con posa diagonale, a valorizzare la luminosità in questo ambiente, una grande porta finestra anch'essa con accesso al giardino privato.
Se vuoi vivere in città ma allo stesso tempo godere di uno spazio esterno privato e discreto, questa è la soluzione che fa per te!
Completa la soluzione una cantina di pertinenza.
La zona si presenta ottimamente servita e nelle vicinanze si possono trovare Supermercati, Banche, Farmacie e servizi di prima necessità; inoltre molto comoda alla stazione di Trezzano S/N dalla quale dista solamente 700 metri.
POSSIBILITA' DI ACQUISTARE UN BOX AUTO AD EURO 15.000, 00 (QUINDICIMILA)
BUONI MOTIVI PER ACQUISTARE QUESTO IMMOBILE:
- Condizioni interne buone
- Contesto condominiale recente costruzione
- Giardino Privato
- Costi di gestione contenuti.
Consistenze
| Descrizione | Superficie | Sup. comm. |
|---|---|---|
| Principali | ||
| Immobile - 1° piano | 80 Mq | 80 Mqc |
| Totale | 80 Mqc | |
